Aktuálně můžete v lokalitě Pardubice vybírat z nabídky 20 domů.
Přehled nemovitostí: prodej domy > rodinné domy Zpět na přehled nabídek

Prodej, Rodinný dům, Hnátnice

984 m2

82 m2

G - Mimořádně nehospodárná

0426

20.03.2026

Cena: 4160000 CZK / objekt

Poslat dotaz k nabídce
Zásady používání osobních údajů

Prodejce

Makléř: Ondřej Kolář

Telefon: 736 414 ...

E-mail: ondrej. ...

Zobrazit celý kontakt

Nemovitost nabízí

Ondřej Kolář - vasrealitak.cz

Barcalova 1, 562 01 Ústí nad Orlicí

www.vasrealitak.cz

Zobrazit kontakt na RK

Zobrazit všechny nabídky RK

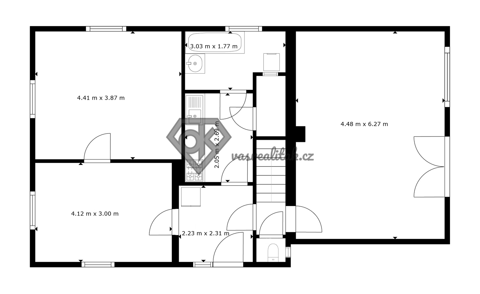
Vítejte v Hnátnici! Hledáte rodinný dům s pozemkem tak akorát, klidnou atmosférou a možností úprav podle vlastních představ? Tak tato nabídka, pro Vás může být tou pravou. Jaká je dispozice domu? - předsíň - pokoj s kachlovými kamny - další pokoj - kuchyň - spíž - koupelna - toaleta - dílna, garáž - podkroví, s potenciálem pro další obytné místnosti Pár technických údajů? - užitná plocha domu: 82 m2 - celková plocha pozemku: 984 m2 - prostorná zahrada - plastová okna - nová střecha - vytápění pomocí kachlových kamen a přímotopů - ohřev vody průtokovým ohřívačem - na pozemku je také studna s užitkovou vodou - sítě: elektřina, voda, kanalizace, plyn je přiveden na hranici pozemku (HUP) Pro koho je dům ideální? - pro rodinu hledající klidné bydlení s větším pozemkem - pro ty, kteří hledají dům, který si mohu zařídit přesně podle svých přání a potřeb - pro milovníky klidu a přírody O jakou se jedná lokalitu? Dům se nachází v klidné obci Hnátnice, která leží nedaleko města Ústí nad Orlicí, takže veškerou občanskou vybavenost máte v krátké dojezdové vzdálenosti. Nabízí příjemné venkovské bydlení s dostatkem soukromí a klidu. V okolí se nachází krásná příroda a množství možností pro procházky, cykloturistiku nebo výlety. Lokalita je ideální pro ty, kteří hledají klidné bydlení mimo ruch města, ale zároveň chtějí mít město na dosah. Dobrá dostupnost do okolních měst a zároveň příjemné prostředí pro rodinný život Poznámka: - uvedené výměry jsou pouze orientační - v případě více zájemců bude nemovitost prodána nejlepší nabídce a majitel si vyhrazuje právo vybrat kupujícího na základě jim zvolených kritérií - veškeré zveřejněné údaje obsažené v tomto inzerátu mají pouze informativní charakter a nejsou nabídkou ve smyslu § 1731 nebo § 1732 občanského zákoníku, ani se nejedná o veřejný příslib dle § 1733 občanského zákoníku



Nahoru