Makléř: Kolenović Hilmo
Nemovitost nabízí
Reality Kolenović s.r.o.
Gorkého 1243, 530 02 Pardubice
Zobrazit kontakt na RK
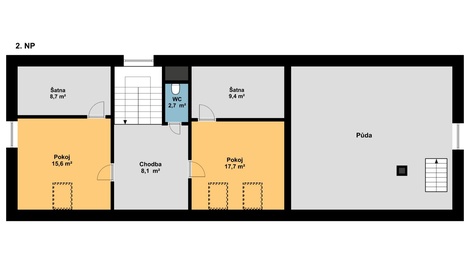
Nabízíme k prodeji velmi pěkný rodinný dům o dispozici 4+kk s garáží a prostornou zahradou, situovaný v klidné obci Lukavice nedaleko od Chrudimi. Dům je ve výborném technickém stavu po kompletní přestavbě z r. 2022, z původního domu zůstaly jen obvodové zdi, které jsou zatepleny kontaktním zateplovacím systémem. Dům je napojen na elektřinu, plynovod a vodovod, kanalizace je momentálně řešena septikem s již provedenou přípravou na napojení na veřejnou kanalizaci, která bude dokončena do konce roku 2026. Dům je ideální volbou pro rodiny, které touží po klidném životě v blízkosti přírody, ale zároveň nechtějí být daleko od městské vybavenosti. Co tento dům nabízí: • Perfektní stav - nastěhujte se bez starostí • Komfortní velikost i dispozice - 4+kk (plocha bytu 179 m2 + garáž 27 m2 + půda 34 m2) • Velkorysé úložné prostory - šatny, půda, podsklepená garáž • Pohodlné parkování přímo u domu nebo v garáži • Velká a slunná zahrada s rozsáhlým příslušenstvím - krytá terasa s grilem, zděná udírna, zahradní domek, dětské hřiště, bazén • Výborná dostupnost - jen 6 minut autem do Chrudimi s kompletní občanskou vybaveností (školy, obchody, lékaři, sportoviště, apod.), 15 minut do Pardubic Obec Lukavice nabízí klid, přírodu a pohodu, ale zároveň i základní občanskou vybavenost - mateřskou školu a základní školu, obchod Coop, pohostinství, dětské hřiště, apod. Okolí je ideální pro pěší turistiku, cyklistiku i procházky s rodinou. Podlahové plochy místností jsou pouze orientační a byly zjištěny měřením. Majitel si vyhrazuje právo výběru kupujícího. Financování koupě nemovitosti Vám rádi zdarma zajistíme prostřednictvím našeho partnera. Přijďte navnímat kouzlo tohoto domu, který může být vaším novým domovem. Neváhejte a domluvte si s makléřem prohlídku.
Prodej rodinného domu 210 m, pozemek 1550 m, Lukavice
Na prodej rodinný dům v obeci Lukavice Nabízíme vám jedinečnou příležitost zakoupit rodinný dům v malebné lokalitě Lukavičky, který je ideální pro…