Makléř: Pechová Štěpánka
Telefon: 296 399 ...
E-mail: info@mm ...
Zobrazit celý kontaktTelefon: 296 399 006
E-mail: info@mmreality.cz
Nemovitost nabízí
M&M reality holding a.s.
Krakovská 1675/2, 110 00 Praha 1
Zobrazit kontakt na RK800 100 446
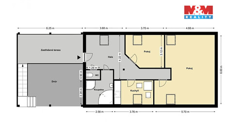
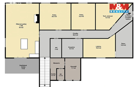
Nabízíme k prodeji výjimečnou rezidenci-multifunkční vícegenerační dům, který splňuje nároky na komfortní bydlení, soukromé wellness i podnikatelské využití na jednom místě. Nemovitost disponuje třemi samostatnými bytovými jednotkami. Dominantou domu je byt 5+1 s terasou a s přímým vstupem do fitness, bazénu a sauny.Tento byt disponuje luxusní kuchyní, krásným dech beroucím kachlovým krbem, dvě pracovny, dětským pokojem a ložnicí s velikou šatnou. K tomuto bytu je přistavěná samostatná přístavba, ve které se nachází bezbariérový byt 3+KK a nad ním podkrovní byt 2+1. Dům prošel v roce 2018 rekonstrukcí a může dobře sloužit jak k trvalému bydlení, tak i k podnikání v různých oblastech např. rekreační, penzion s ubytováním s nabídkou welness, fitness, plavání a sportovní aktivity. Veliké garážové prostory se dají využít například jako autodílna. V roce 2023 zřízená nová fotovoltaika pro úsporu energie. Velkém benefitem je také plánované otevření úseku dálnice D35. Zavolejte si o prohlídku
Prodej rodinného domu, 253 m2, Dobříkov
Na okraji malebné obce Dobříkov nabízíme pozemek se samostatně stojícím rodinným domem určeným k demolici - ideální základ pro realizaci vašeho…
Prodej, Rodinný dům, Králíky
Prodej prostorného rodinného domu po rekonstrukci - Králíky Hledáte pohodlné rodinné bydlení v prostředí hor, s dostatkem prostoru, soukromí i…