Makléř: Josef Jindra
Telefon: 541 211 ...
E-mail: jindra@ ...
Zobrazit celý kontaktTelefon: 541 211 876, 774 740 320
E-mail: jindra@unicareal.cz
Nemovitost nabízí
Unicareal s.r.o.
Hlinky 44/112a, Brno - Pisárky
Zobrazit kontakt na RK541 211 876
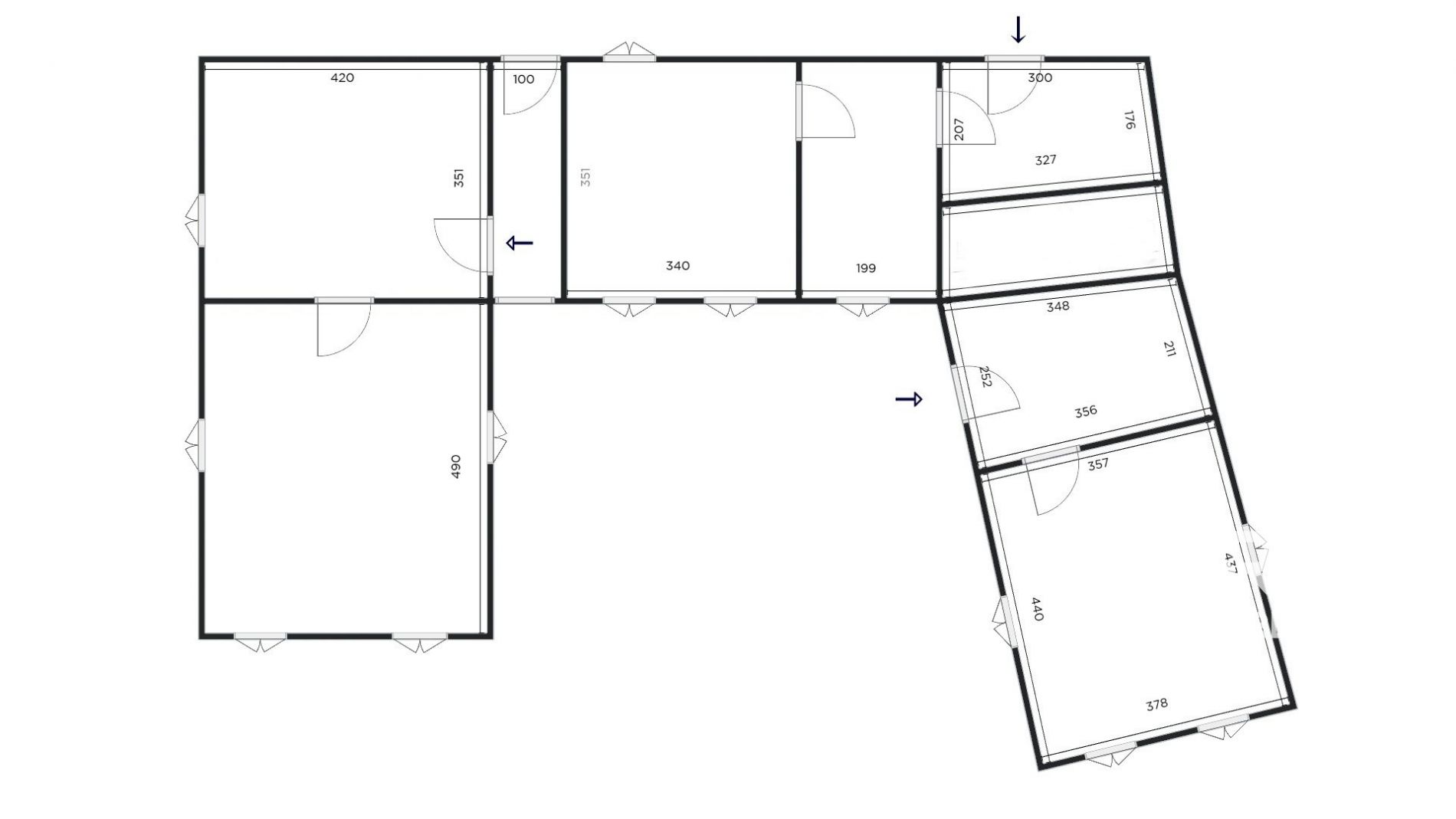
Ve výhradním zastoupení nabízíme k prodeji stylovou chalupu se třemi samostatnými jednotkami z přelomu 18. a 19. století v atraktivní chalupářské lokalitě Pohledy, cca 60 km severně od Brna. Samostatně stojící objekt je se smíšeného zdiva (kámen, pálená i nepálená cihla), se sedlovou střechou. Dispozice: 1. obytná jednotka (2 místnosti ve zvýšeném přízemí) 2. obytná jednotka (2 místnosti s chodbou v prvním patře) 3. obytná jednotka (2 místnosti v přízemí) Dvůr (43m) Půda Sklepy Zahrada vedle domu a za domem (celková výměra 721m) Stodola Objekt ve stylu tradiční usedlosti je postaven do tvaru písmene U, s uzavřeným dvorem a nachází se v klidné části obce. Ze vstupní strany je místní komunikace s minimálním provozem, ze zadní části navazuje zahrada už jen na louky a lesy. Každá obytná jednotka má svůj vlastní vchod, dvě ze dvora, třetí v 1. podlaží ze zahrady. Dům je vhodný ke kompletní rekonstrukci, která již byla započata, např. nové rozvody elektřiny či komíny. Obecní vodovod, elektřina 220/380V. Dům, který má svého ducha a historii ve spojení s nádherným okolím nabízí vše pro klidné bydlení či ničím nerušenou rekreaci uprostřed přírody. Obec Pohledy se rozkládá asi jedenáct kilometrů jihovýchodně od Svitav. Pohledy se dále dělí na dvě části Horní Hynčinu a Pohledy. Z 3,5 km vzdálené Březové nad Svitavou jezdí vlaky do Brna každou hodinu. Obec Pohledy leží v průměrné výšce 495 metrů nad mořem. První zmínku o obci Pohledy nalezneme v historických pramenech v roce 1365 a Horní Hynčiny v roce 1270. Celková katastrání plocha obce je 1992 ha, z toho orná půda zabírá pouze třicetdevět procent. Asi jedna třetina katastru obce je porostlá lesem. Žije zde 303 obyvatel. <a href="https://www.eurobydleni.cz/byty/1_kk/olomouc/obec-olomouc/pronajem/"><strong>Pronájem bytu 1+kk Olomouc</strong></a>
Prodej, Chata, chalupa, Opatovec
Nabízíme Vám k prodeji zajímavou nemovitost se zahradou k bydlení i k rekreaci v obci Opatovec. Na pozemku o celkové výměře 663 m2 leží dřevěná…
Prodej, Chata, chalupa, Borušov
Už jsme Vám představili malou a velkou chatu v rekreačním středisku ve Svojanově Borušově. A Teď pro Vás máme třešničku na dortu. Tato chata doposud…
Prodej chalupy Pohledy na Eurobydleni.cz