Makléř: Hana Zavadilová, Dis.
Telefon: 777 132 ...
E-mail: zavadil ...
Zobrazit celý kontaktTelefon: 777 132 003
E-mail: zavadilova@realityzavadil.cz
Nemovitost nabízí
Reality Zavadil a partneři s.r.o.
Na Příkopech 181/, 53002 Pardubice
Zobrazit kontakt na RK
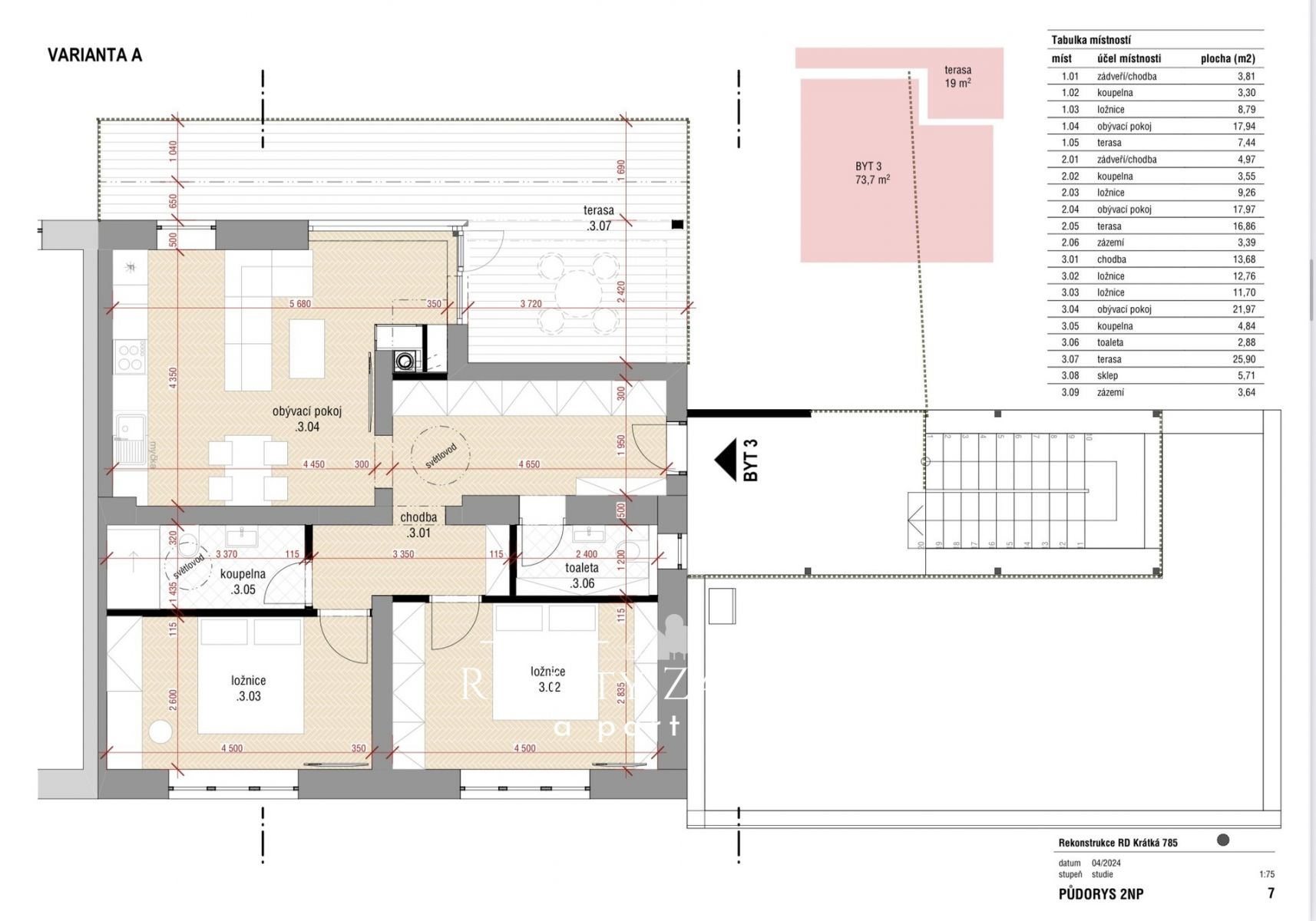
Rodinný dům s potenciálem ul.Krátká, Pardubice Bílé Předměstí, 180 m2 s garáží Ve výhradním zastoupení nabízíme k prodeji rodinný dům v jedné z nejžádanějších lokalit Pardubic Bílé Předměstí, ulice Krátká, v blízkosti lesoparku Studánka. Nemovitost je vhodná jak pro okamžité rodinné bydlení s postupnou rekonstrukcí dle vlastních představ, tak pro investora či developera hledajícího dům s jasným rozvojovým potenciálem. Součástí prodeje je také platné stavební povolení (02/2025) a hotový projekt rekonstrukce na tři samostatné bytové jednotky, který může nový majitel využít ihned nebo jej brát jako významnou přidanou hodnotu do budoucna. Dům tak nabízí výjimečnou kombinaci klidné rezidenční lokality, flexibility využití a dlouhodobé hodnoty. O nemovitosti: užitná / zastavěná plocha domu: cca 180 m plocha pozemku: 325 m současná dispozice: 6+2 (dvě bytové jednotky) samostatná garáž dům se nachází v klidné rezidenční zástavbě s minimálním provozem možnost parkování na pozemku (až 2 vozy), projektově řešená varianta krytých stání / dvojgaráže napojení na veškeré inženýrské sítě Dům je obyvatelný a umožňuje postupnou rekonstrukci svépomocí, což ocení zejména zájemci, kteří si chtějí bydlení upravit podle vlastních potřeb a časových možností. Projekt a budoucí potenciál Velkou výhodou této nabídky je schválený projekt se stavebním povolením na tři bytové jednotky. Díky tomu nový vlastník: nemusí řešit zdlouhavé povolovací procesy, má možnost zahájit stavební práce prakticky ihned, nebo si projekt ponechat jako rezervu do budoucna (např. při změně životní situace). Nemovitost je tak vhodná: pro rodinné bydlení s výhledem dalšího rozvoje, pro kombinaci vlastního bydlení a pronájmu, nebo jako čistě investiční záměr. Lokalita Bílé Předměstí / lesopark Jednou z hlavních předností této nemovitosti je blízkost lesoparku, který poskytuje klid, zeleň a prostor pro každodenní relaxaci procházky, běh, venčení psa nebo volnočasové aktivity s dětmi. Zároveň je zachována výborná dostupnost centra města a kompletní občanská vybavenost: MHD, mateřská i základní škola obchody, služby, lékaři centrum města v krátkém dosahu Lokalita je atraktivní nejen pro vlastní bydlení, ale také z pohledu dlouhodobé hodnoty nemovitosti a poptávky po bydlení. Shrnutí klidná a žádaná rezidenční lokalita u lesoparku dům vhodný k bydlení i investici možnost okamžitého užívání i postupné rekonstrukce projekt a stavební povolení jako výrazná přidaná hodnota velmi dobrý poměr lokality, flexibility a budoucího potenciálu V případě, že vás tato nemovitost zaujala, ráda vás domem osobně provedu <a href="https://www.eurobydleni.cz/domy/rodinny-dum/praha-5/obec-jinonice/pronajem/"><strong>Pronájem rodinného domu Praha 5, Jinonice</strong></a>
Prodej rodinného domu 4+1, 462 m2, Pardubice, Cihelna
Nabízíme k prodeji prostorný řadový rodinný dům v žádané lokalitě v Pardubicích, na Cihelně. Dům je postaven z cihlové konstrukce a nachází se v…
Prodej, Rodinný dům, Pardubice
Nabízíme k prodeji rodinný dům v malebné části obce Černá za Bory, v těsné blízkosti Pardubic. Tento dvoupodlažní samostatný cihlový dům ideální…
Prodej rodinného domu Pardubice na Eurobydleni.cz