Aktuálně můžete v lokalitě Pardubice vybírat z nabídky 26 domů.
Přehled nemovitostí: prodej domy > rodinné domy Zpět na přehled nabídek

Prodej rodinného domu 180 m, Pardubice - Bílé Předměstí

325 m2

neuvedeno

G - Mimořádně nehospodárná

00976

16.12.2025

Cena: na dotaz v RK
Poznámka k ceně: dohodou, včetně DPH, včetně poplatků, včetně provize, včetně právního servisu 1

Poslat dotaz k nabídce
Zásady používání osobních údajů

Prodejce

Makléř: Hana Zavadilová, Dis.

Telefon: 777 132 ...

E-mail: zavadil ...

Zobrazit celý kontakt

Nemovitost nabízí

Reality Zavadil a partneři s.r.o.

Na Příkopech 181/, 53002 Pardubice

www.realityzavadil.cz

Zobrazit kontakt na RK

Zobrazit všechny nabídky RK

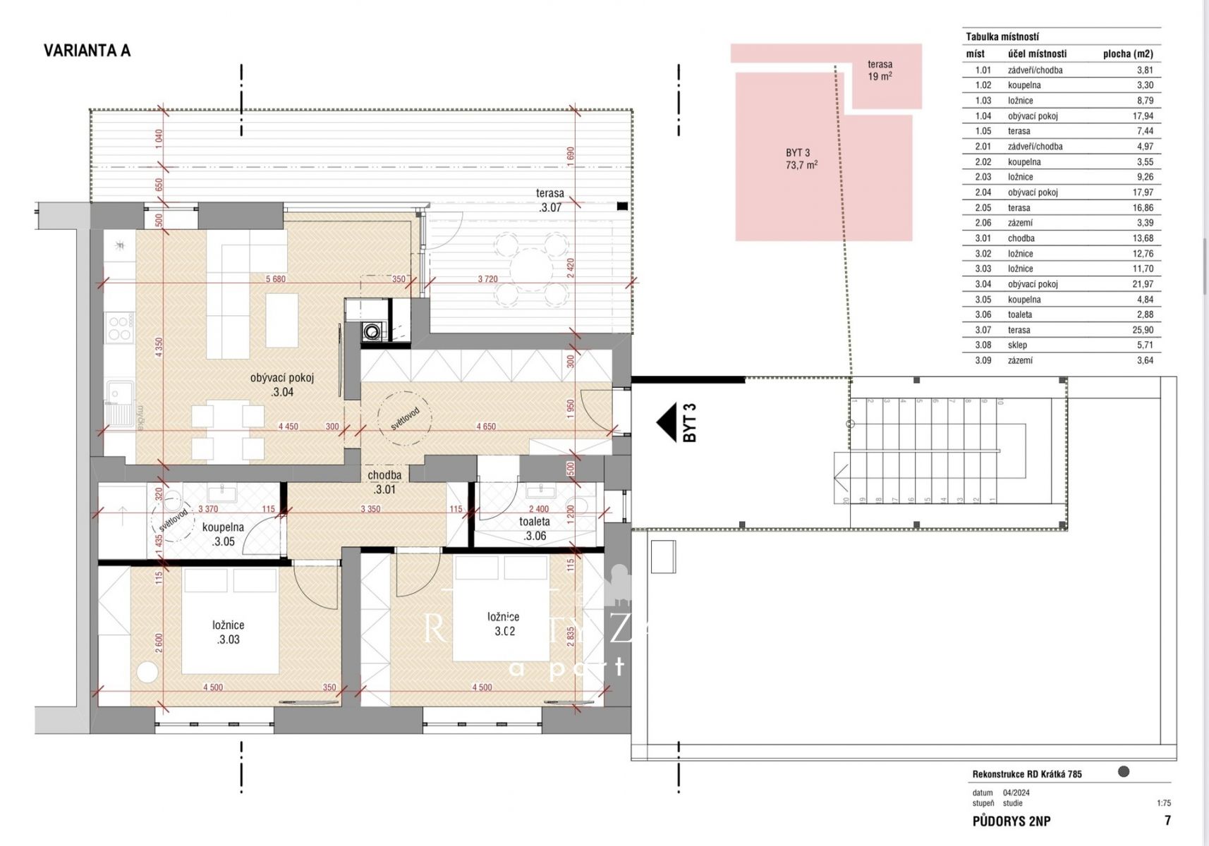
Ve výhradním zastoupení pana majitele nabízíme ke koupi rodinný dům se dvěma bytovými jednotkami, nacházející se v jedné z nejžádanější lokalit Pardubic - Bílé Předměstí, ulice Krátká. Místo, kde se snoubí klid rezidenční čtvrti s výbornou dostupností do centra města a kompletní občanskou vybaveností v docházkové vzdálenosti. Zděný dům z první poloviny 20. století stojí na pozemku o výměře 325m2 s dispozicí 6+2. Může být ideální volbou jak pro rodinu, tak pro vícegeneračních soužití, případně investiční záměr. Popis současného stavu a dispozice domu: 1.NP: 3+KK zádveří s prosklenou verandou, chodba, koupelna ( umyvadlo, vana, toaleta), dvě ložnice, obytná místnost součástí které je kuchyňská linka. 2.NP: 3+KK obytná místnost s přípravou pro kuchyňskou linku, dvě ložnice a koupelna Dům prošel částečnou rekonstrukcí, v rámci které proběhla výměna oken za plastová a výměna topné soustavy. Nový majitel tak může navázat a dokončit rekonstrukci domu podle svých představ. Velkou přidanou hodnotou je vypracovaný stavební projekt na rekonstrukci, na který bylo v únoru 2025 vydané stavební povolení. V projektu jsou navrženy tři bytové jednotku se samostatným vchodem a krytým parkovacím stáním. Výjimečná příležitost pro investory. Popis dispozice po rekonstrukci: 1.NP 2+KK 36m2 terasa 7,5m2 a jedno kryté parkovací stání. 2+KK 38,7m2 terasa 17m2, jedno kryté parkovací stání, zahrada a zahradní kóje 2.NP 3+KK 74m2 terasa 26m2, jedno kryté parkovací stání, sklep 5,7m2, zahrada a zahradní kóje Tato nemovitost má velký potenciál z hlediska jejího umístění a dispozice. V docházkové vzdálenosti najdete zastávku MHD, mateřskou školku, základní školu, lékaře, poštu, supermarkety, restaurace, kavárny. V případě, že vás tato nabídka zaujala, ráda se s vámi osobně potkám na prohlídce <a href="https://www.eurobydleni.cz/domy/rodinny-dum/praha-vychod/obec-zdiby/prodej/"><strong>Prodej rodinného domu Zdiby</strong></a>




Prodej rodinného domu Pardubice na Eurobydleni.cz


Nahoru