Makléř: Jan Louženský
Telefon: 800 775 ...
E-mail: info-re ...
Zobrazit celý kontaktTelefon: 800 775 577
E-mail: info-reality@swisslifeselect.cz
Nemovitost nabízí
Swiss Life Select Reality
Pobřežní 620/3, 186 00 Praha
Zobrazit kontakt na RKinfo-reality@swisslifeselect.cz
800 775 577
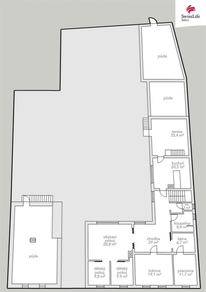
Nabízíme k prodeji rodinný dům s 2 prostornými bytovými jednotkami a spoustou vedlejších staveb vhodných pro práci, parkování a uložení vetších movitých věcí i trávení volného času s rodinou a přáteli. Dům se nachází v obci Turov, která spadá pod obec Moravany v dojezdové vzdálenosti 5 minut od nájezdu na D35. V občanské vybavenosti obce je základní i mateřská škola v Moravanech, prodejny potravin, sportovní a zájmové kluby, pošta, praktický lékař, zubní péče, přírodní koupaliště se zázemím, prodejna stavebnin a pracovní příležitosti. K domu patří i pozemky, které jso uv územním plánu určené k zástavbě vesnického typu a částečně jako zeleň. Dům bude k nastěhování po převodu na nového majitele. <a href="https://www.eurobydleni.cz/byty/1_kk/praha-vychod/obec-brandys-nad-labem-stara-boleslav/prodej/"><strong>Prodej bytu 1+kk Brandýs nad Labem-Stará Boleslav</strong></a>

Prodej rodinného domu 204 m2 Moravany
Mám tu pro Vás prostorný, dvoupodlažní, částečně podsklepený rodinný dům u vnitřní ploše 204 m v žádané lokalitě nedaleko Pardubic a Chrudimi. Od…
Prodej rodinného domu Moravany na Eurobydleni.cz