Makléř: Mgr. Jaroslav Široký
Telefon: 608 056 ...
E-mail: jarosla ...
Zobrazit celý kontaktTelefon: 608 056 566
E-mail: jaroslav.siroky@adomus.cz
Nemovitost nabízí
ADOMUS s.r.o.
Bělohorská 659/198, 169 00 Praha 6
Zobrazit kontakt na RK800 707 707
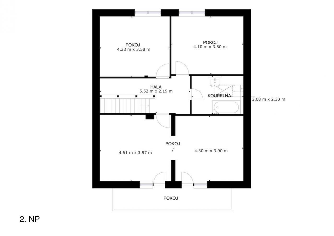
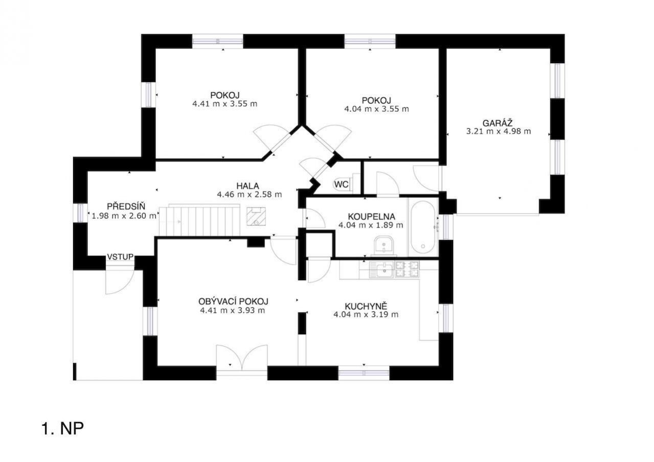
Prostorný rodinný dům se zahradou, na kraji malé klidné obce v kontaktu s přírodou, avšak s velmi dobrou dostupností do Hradce Králové (15min. autem do centra HK). Nedaleko je také nájezd na D 35. Mezi obcí a dálnicí je les a klidné prostředí obce tak není rušeno. Dostupná je i veškerá občanská vybavenost (Hrachoviště a Býšť). U vjezdu na pozemek je na dálkově ovládaná brána. V přízemí domu se nachází obývací pokoj, zařízená kuchyně, 2 pokoje (jeden se šatníkem), chodba, koupelna, WC, technická místnost a dále pak k domu přiléhající garáž s přístupem do domu. V prvním patře jsou 2 pokoje, obývací pokoj, kuchyně, chodba a koupelna s WC. Vytápění je zabezpečeno plynovým kotlem, v případě potřeby lze využít i krbová kamna na pevná paliva. Koupelna a WC v přízemí disponují elektrickým podlahovým vytápěním. Dům je energeticky úsporný a celkové měsíční náklady na dodávky vody, elektřiny, vytápění plynem, kanalizaci a odvoz odpadu se pohybují do 5000 kč. Vedle dvora opatřeném zámkovou dlažbou je příprava na dvougaráž. Celkem tak u domu může pohodlně parkovat až 5 aut. Za domem se nachází zahrada s výhledem do přírody. K pozemku za zahradou přiléhá pole, na nějž navazuje les. Zavolejte mi, nebo napište a půjdeme se na dům společně podívat. Doporučuji prohlídku. <a href="https://www.eurobydleni.cz/byty/4_kk/brno/obec-cernovice/prodej/"><strong>Prodej bytu 4+kk Brno-město, Černovice</strong></a>
Prodej, Rodinný dům, Býšť
Prodej prostorného patrového rodinného domu 5+1 s obytnou plochou 160 m2 v obci Hoděšovice na pozemku o rozloze 800 m2. Je zde možnost…
Prodej rodinného domu, Býšť
Nabízíme Vám k prodeji prostorný rodinný dům s možností využití pro dvougenerační bydlení. Je umístěn v klidné části obce Býšť. Nemovitost se…
Prodej rodinného domu Býšť na Eurobydleni.cz